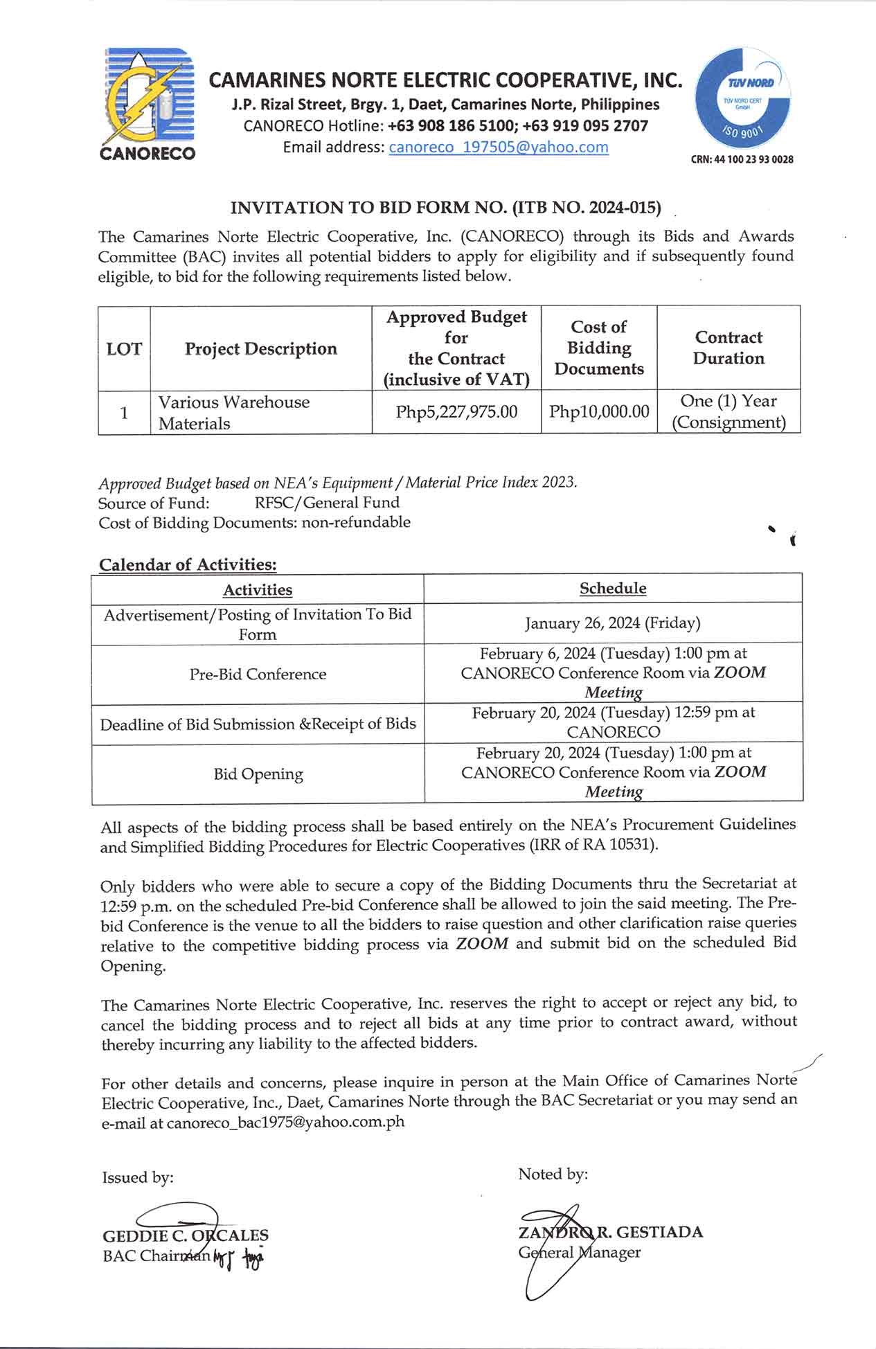
Invitation to Bid ITB No. 2024-015 – (Various Warehouse Materials) Posted on January 25, 2024 Author Comments Off on ITB No. 2024-015 – (Various Warehouse Materials)